
Professional steel detailing and shop drawings in Toronto. Structural steel fabrication drawings for beams, columns, and connections.
Last updated:
Konstruction Group provides in-house steel detailing as part of our complete supply and install service for structural steel projects across Toronto and Ontario. Unlike standalone detailing firms, our detailers work directly with our fabrication shop and installation crews - ensuring drawings are optimized for production and field conditions. For projects where we handle fabrication and installation, detailing is included as part of the package. We also offer detailing services to other fabricators and contractors.


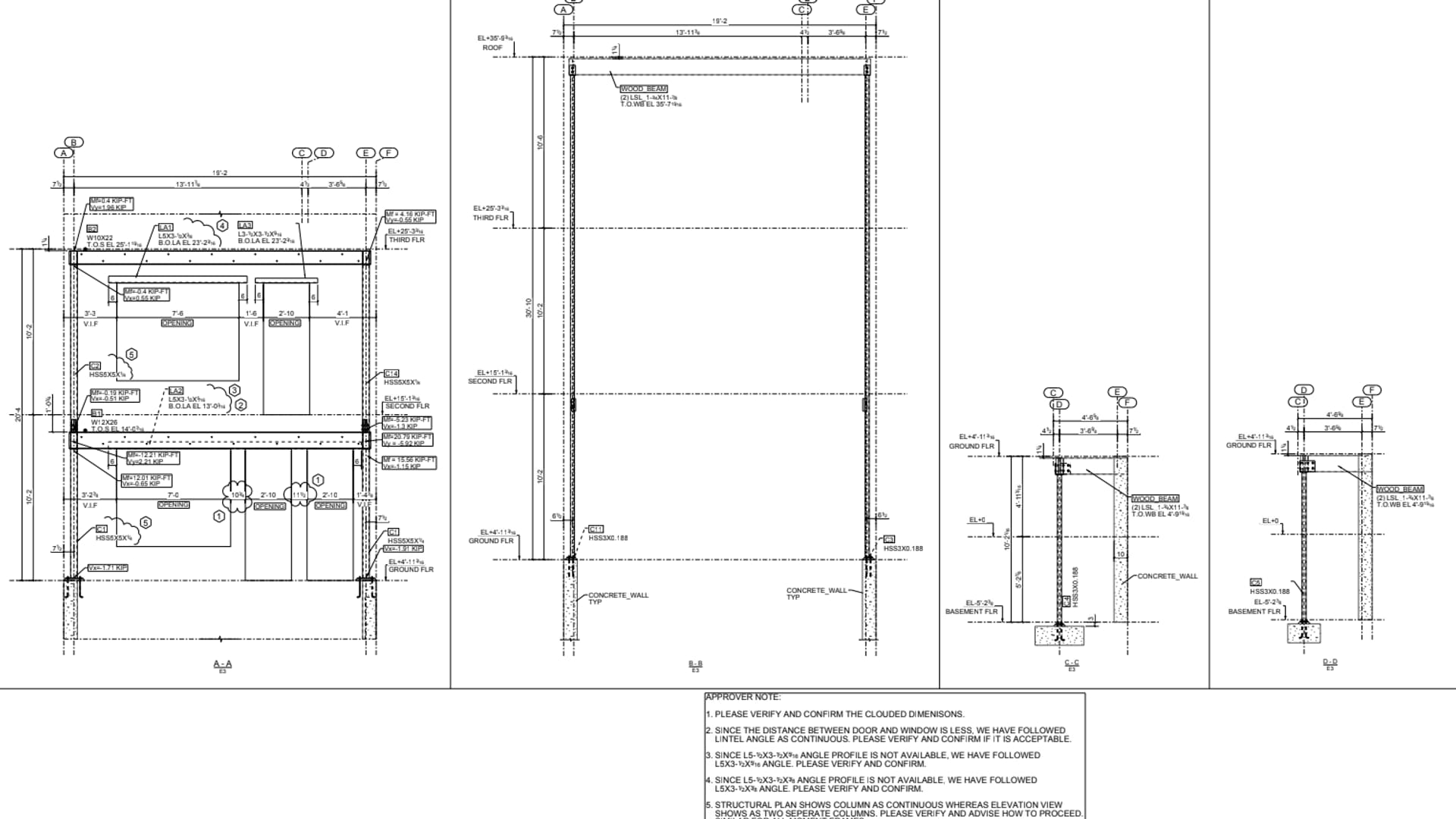
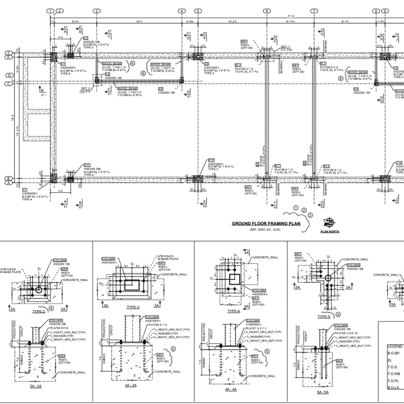
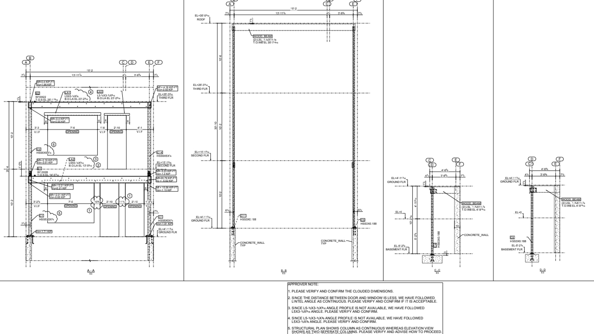
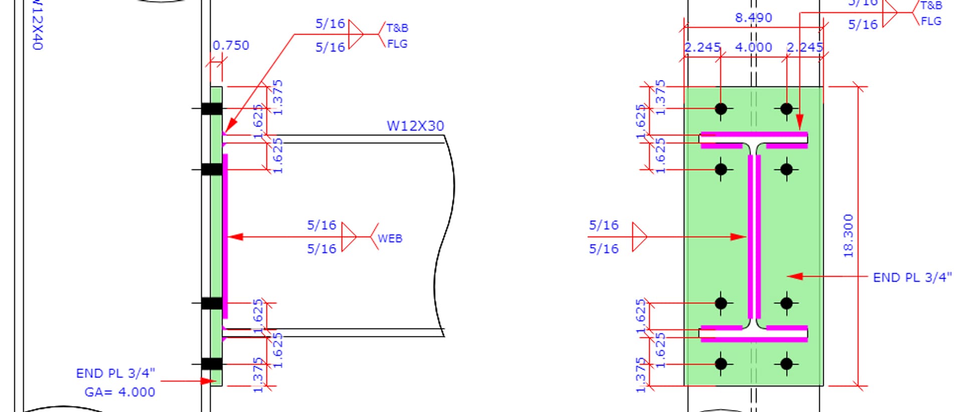
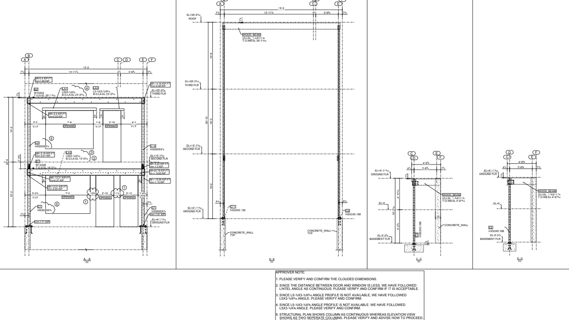
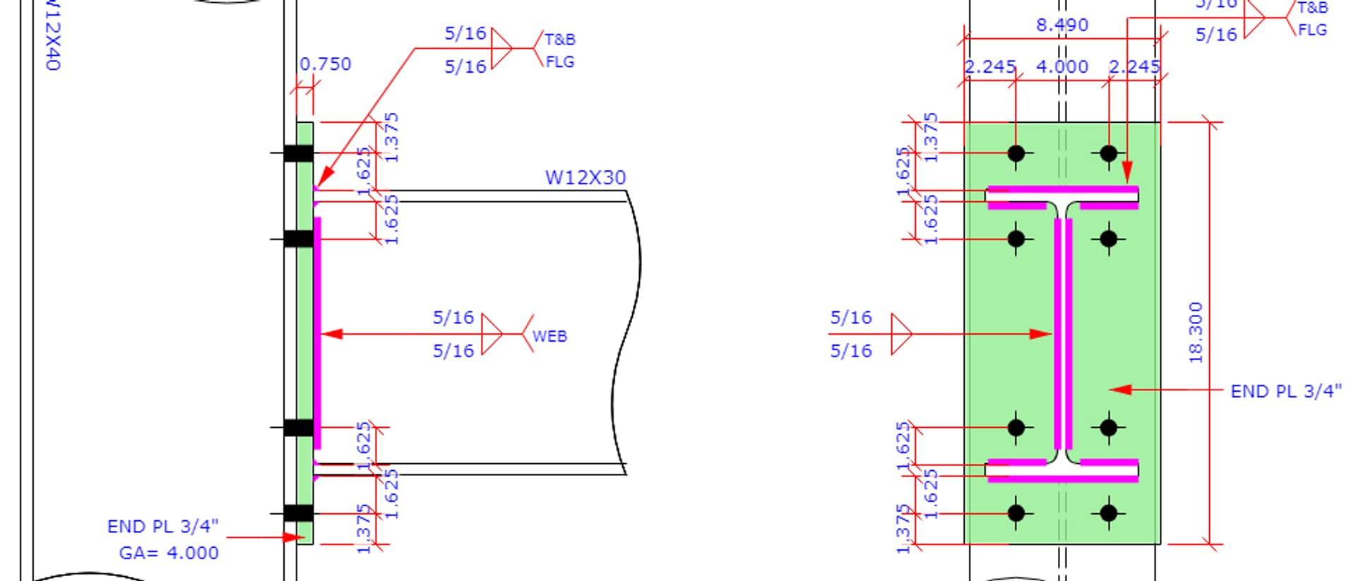
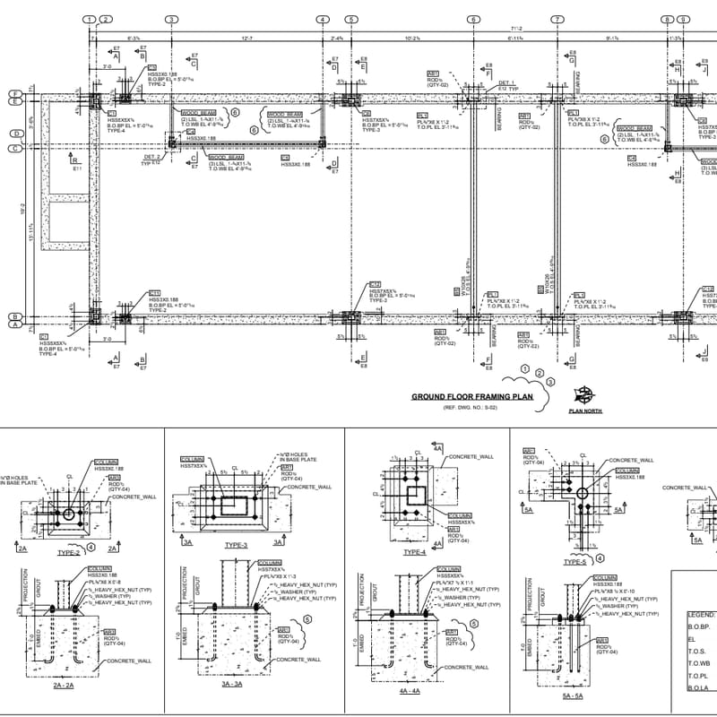
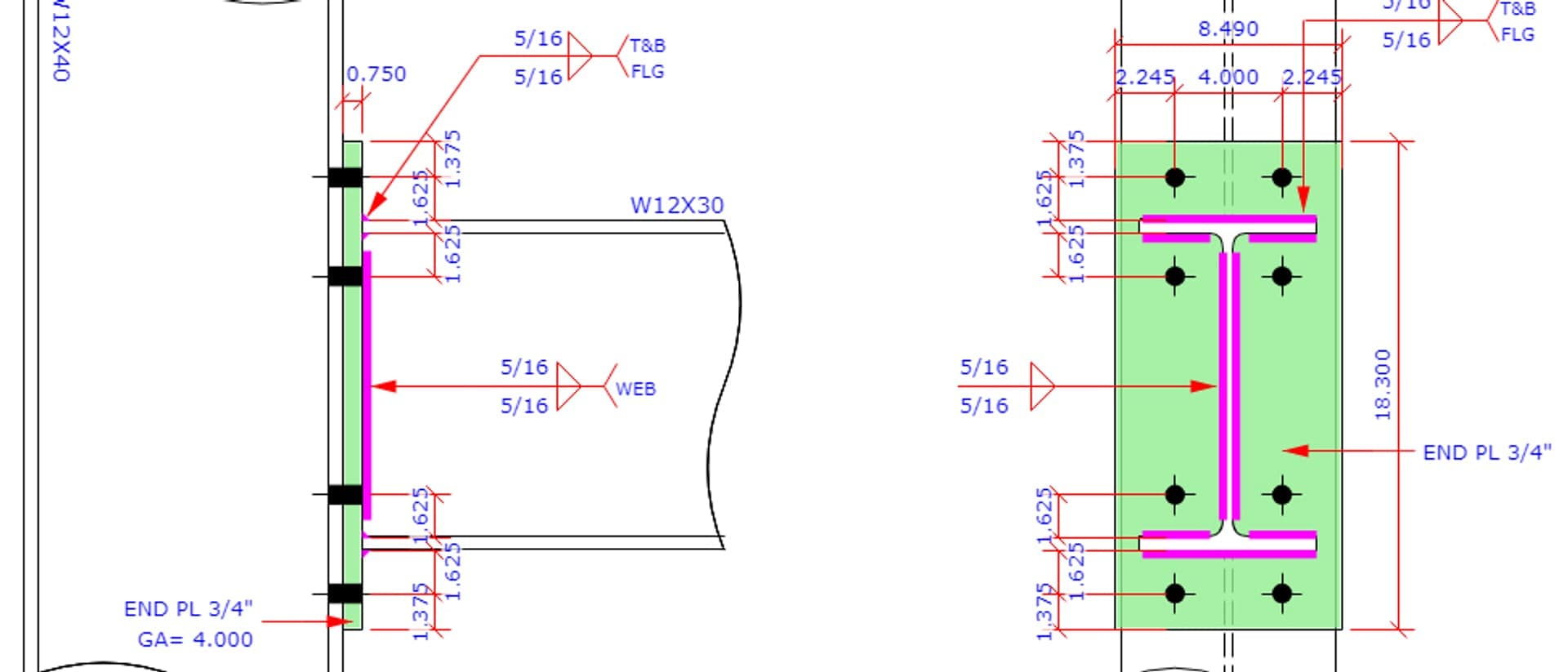
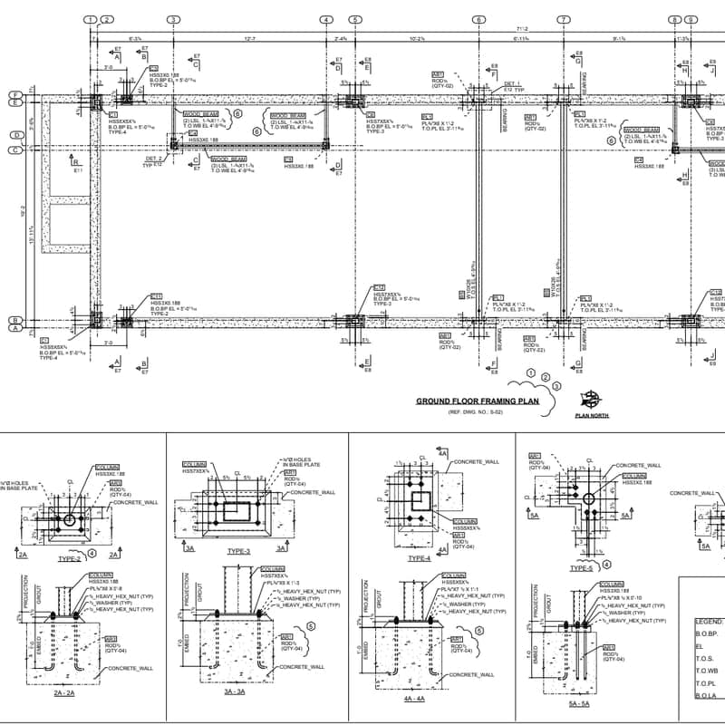
Steel detailing converts structural engineer designs into fabrication-ready drawings. Every beam, column, plate, and connection is detailed with exact dimensions, hole patterns, weld specifications, and erection marks. These shop drawings guide the fabrication shop in producing steel and the erection crew in assembling it on site.
Structural steel detailing translates the engineer's design drawings into fabrication-ready shop drawings that our shop uses to cut, drill, and weld every steel component. Each detail includes exact dimensions, connection types, bolt patterns, weld specifications, and material grades. Accurate structural detailing prevents costly field modifications and ensures every piece fits precisely during erection.
When you hire Konstruction Group for steel supply and install, detailing is included in the package. Our in-house detailers produce shop drawings, then our shop fabricates the steel, and our welders install it. This integrated approach eliminates coordination issues between separate detailing, fabrication, and erection companies. One team, one point of contact, single-source accountability.
Accurate steel detailing prevents costly field modifications and delays. When pieces don't fit, projects stop while corrections are made. Because our detailers work directly with our fabricators and installers, they understand real-world production and field conditions. Drawings are optimized for our CNC equipment and our crews' installation methods. This integration reduces errors and keeps projects on schedule.
Our detailers use Tekla Structures — the industry-standard BIM software for steel detailing — to produce accurate 3D models and shop drawings. All drawings follow CISC (Canadian Institute of Steel Construction) standards and Canadian Welding Bureau certification requirements. Drawings are submitted for engineer approval before fabrication begins. We incorporate review comments quickly and maintain drawing revisions throughout the project.

You provide structural engineering drawings. We review scope and provide a quote with timeline.
Typical timeline: 1-2 daysWe set up the 3D model, establish grids and elevations, and coordinate project parameters.
Typical timeline: 1-2 daysSteel members are modeled in 3D per engineering drawings. Connections are developed and detailed.
Typical timeline: 1-3 weeksFabrication drawings, erection plans, and material lists generated from the model.
Typical timeline: 3-7 daysDrawings reviewed internally for accuracy and completeness before submission.
Typical timeline: 1-2 daysDrawings submitted to structural engineer for approval. We respond to comments and revise as needed.
Typical timeline: 1-2 weeksApproved drawings released to fabrication shop. Revisions issued as needed during construction.
Typical timeline: OngoingSteel detailing is typically priced per tonne of steel or by project scope. Simple projects might run $80-$150 per tonne, while complex work with many connections costs more. Small projects may have minimum charges. We provide quotes based on your structural drawings and project requirements.
Turnaround depends on project size and complexity. Small projects (under 10 tonnes) might take 1-2 weeks. Medium projects take 2-4 weeks. Large structural packages require more time. Rush services are available for urgent projects. We provide timelines with our quotes.
Yes, we work from engineer-stamped structural drawings that show member sizes, locations, and connection requirements. The engineer specifies design loads and connection types. Our shop drawings translate their design into fabrication and erection instructions.
The structural engineer of record reviews and approves shop drawings before fabrication. They verify our drawings match their design intent. We submit drawings, incorporate review comments, and resubmit until approved. This approval process is standard in construction.
We can detail connections per the engineer's specifications or work with engineers on connection design. Some engineers specify exact connection details; others provide loads and allow the detailer to design connections within parameters. Connection design requires engineering approval.
Yes, we use 3D modeling software to create our shop drawings. The 3D model helps identify clashes, visualize complex connections, and produce accurate drawings. We can provide model files for coordination with other trades if needed.
Steel detailing typically costs $80 to $200 per ton of fabricated steel, depending on connection complexity, the number of unique pieces, and project size. Simple beam-and-column structures fall at the lower end, while complex moment frame connections and custom fabrications cost more per ton. Our in-house detailing is included in our supply-and-install packages, reducing overall project cost compared to outsourcing detailing separately.
Contact us today for a free consultation and estimate on your project.
Request Quote Online(416) 901-6020Professional metal stud shop drawings in Toronto. Detailed CFS framing drawings for cold-formed steel and metal stud projects.
Professional value engineering services in Toronto. Cost optimization and design alternatives for construction projects without compromising quality.
Professional construction takeoff and estimation services in Toronto. Accurate material quantities and cost estimates for framing, drywall, and steel projects.
Contact Konstruction Group today for professional steel shop drawings services in Toronto and the GTA.
Get a Free Quote