
Shop drawings and estimation services for construction projects across Ontario.
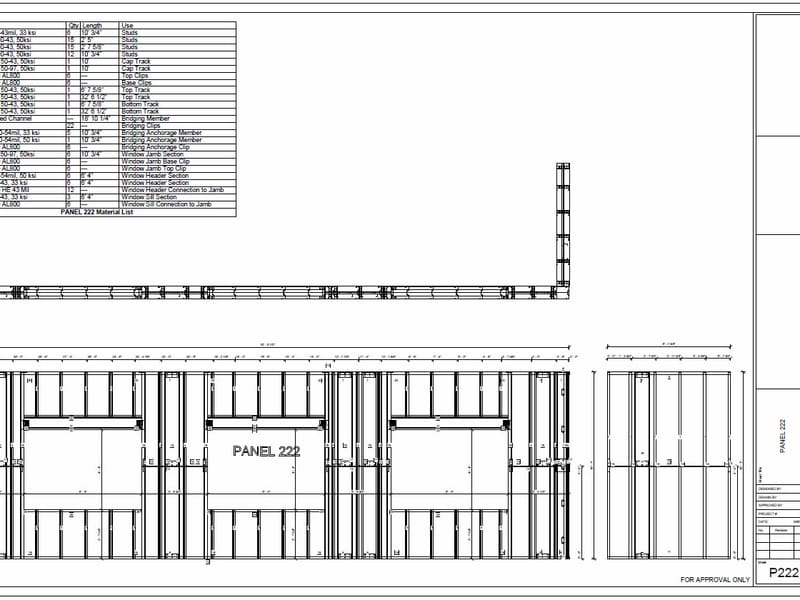
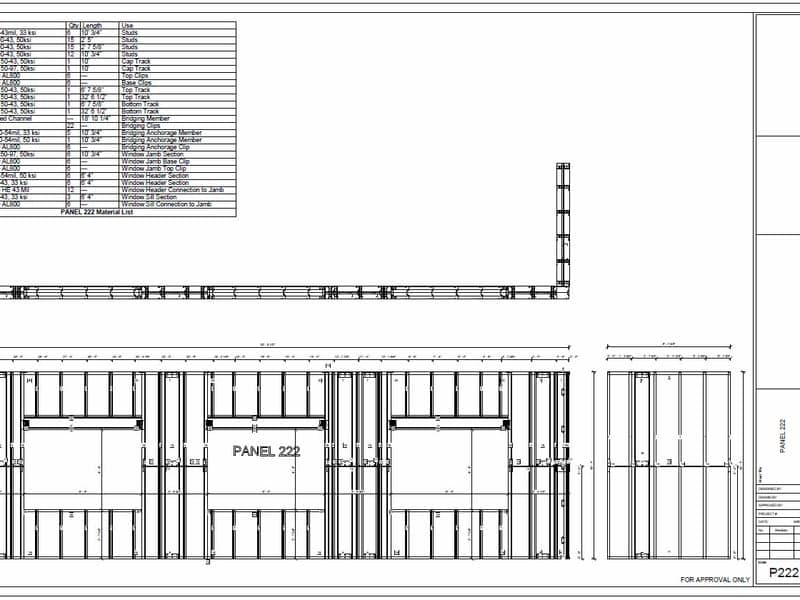
Accurate shop drawings are the foundation of efficient construction. A framing crew working from vague or incomplete drawings makes assumptions — and assumptions lead to errors, material waste, and costly rework. Konstruction Group produces detailed metal stud and structural steel shop drawings that translate architectural and engineering intent into fabrication-ready and field-ready documents. Our drawings show every stud layout, connection detail, opening header, and blocking location so crews can build without guessing. For steel projects, our detailing includes beam and column cut lists, connection geometry, weld specifications, and erection sequences that keep fabrication and installation aligned.
Material takeoffs and cost estimates that are off by even 10% can wreck a project's budget or leave your site short on materials mid-build. Our estimation team uses plan takeoff software combined with field experience to produce accurate material quantities for framing, drywall, insulation, and steel projects. We account for waste factors, cutting patterns, and the real-world conditions that generic estimating formulas miss — things like non-standard ceiling heights, curved walls, and complex roof geometries. General contractors and developers rely on our estimates for competitive bidding, and our track record of accuracy keeps them coming back.
Value engineering is not about using cheaper materials — it's about finding smarter solutions that achieve the same structural and performance outcomes at lower cost. Our team reviews architectural and structural drawings to identify opportunities where alternative framing layouts, steel connection types, or material specifications can reduce costs without compromising code compliance or structural integrity. Common value engineering wins include optimizing stud spacing to reduce material counts, substituting equivalent but less expensive steel sections where engineering allows, and simplifying connection details that are over-designed for the actual loads. We present these alternatives to your engineer for approval, giving you documented savings backed by professional review.

Professional metal stud shop drawings in Toronto. Detailed CFS framing drawings for cold-formed steel and metal stud projects.
Learn more
Professional steel detailing and shop drawings in Toronto. Structural steel fabrication drawings for beams, columns, and connections.
Learn more
Professional value engineering services in Toronto. Cost optimization and design alternatives for construction projects without compromising quality.
Learn more
Professional construction takeoff and estimation services in Toronto. Accurate material quantities and cost estimates for framing, drywall, and steel projects.
Learn moreCommon questions about our engineering services in Toronto and the GTA.
Shop drawings are detailed fabrication documents that translate the structural engineer's design into precise cut lists, connection details, and assembly instructions for the shop and field. They specify exact beam lengths, bolt patterns, weld sizes, and material grades. Shop drawings prevent errors during fabrication and ensure the steel fits correctly on site.
Metal stud and steel shop drawings typically take 1–2 weeks from receipt of structural drawings to final delivery. Complex projects with moment frames or multi-storey structures may take 2–3 weeks. Rush turnaround is available for time-sensitive projects.
Value engineering analyzes your construction plans to find cost savings without sacrificing quality or code compliance. This might include substituting engineered lumber for oversized dimensional lumber, optimizing stud spacing, or suggesting alternative connection details that reduce labour. Our value engineering reviews typically save 10–20% on material and labour costs.
Our material takeoffs achieve ±5% accuracy, which is the industry standard for competitive bidding. We use digital takeoff software to measure quantities from architectural and structural drawings, then apply waste factors appropriate to each material type. Accurate takeoffs prevent both material shortages (which cause delays) and over-ordering (which wastes money).
Contact us today for a free consultation and quote on your engineering project.