
Professional construction takeoff and estimation services in Toronto. Accurate material quantities and cost estimates for framing, drywall, and steel projects.
Last updated:
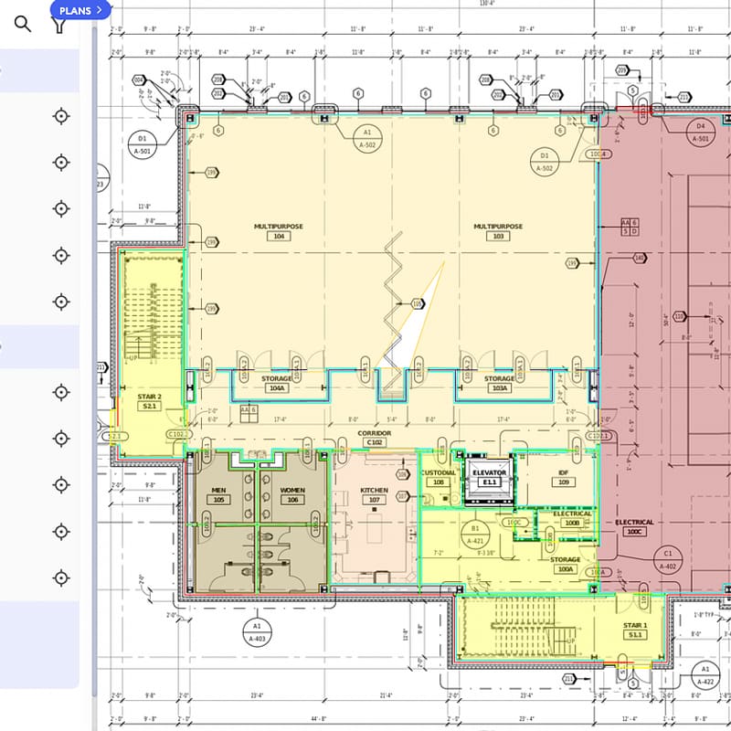
Konstruction Group provides professional construction takeoff and estimation services for contractors and builders throughout Ontario. Our estimators have hands-on field experience with framing, drywall, insulation, and steel - we know what's involved in building these systems, not just counting materials on paper. We deliver accurate quantities that help you bid competitively while maintaining healthy margins.


We install what we estimate. Our takeoffs come from practical field experience, not just software measurements. We know which details add labour time - double-layer Type X drywall on party walls, mineral wool in fire-rated cavities, resilient channel on ceiling assemblies. We account for Ontario Building Code fire-rated assemblies that require extra layers and waste factors that actually work in the field: typically 5-7% for drywall, 8-10% for framing lumber, and 10-15% for steel. This real-world knowledge produces estimates you can build from, not academic numbers that fall short on site.
We provide takeoff services to general contractors, developers, and specialty contractors who need accurate quantities for bidding. Whether you're pricing a custom home, multiplex, mid-rise residential, or commercial tenant improvement, our estimates give you the numbers you need to win work profitably. Many GTA contractors use our takeoff service when their in-house estimating team is at capacity during busy bidding seasons.
We understand tight bid deadlines. Our team provides quick turnaround without sacrificing accuracy - typically 2-5 business days depending on project size and complexity. Simple residential projects can often be turned around in 48 hours. Rush service is available when you need it for last-minute bid opportunities. Digital delivery via email means you get your takeoffs when you need them, wherever you are.

We review your drawings to assess scope and provide a quote for the takeoff.
Typical timeline: Same dayWe confirm exactly what scopes you need estimated and any specific requirements.
Typical timeline: 1 dayOur estimators measure quantities using digital takeoff software with field-based verification.
Typical timeline: 2-4 daysSenior estimator reviews quantities for accuracy and completeness.
Typical timeline: 1 dayExcel spreadsheets and PDF reports delivered digitally.
Typical timeline: Same dayTakeoff pricing depends on project size and complexity. Simple residential projects start around $200-$500. Larger commercial projects vary based on scope. We can provide a quote after reviewing your drawings - just send PDFs and we'll let you know the cost and turnaround time.
Standard turnaround is 2-5 business days depending on project size. Rush service is available for tight deadlines - contact us about your timeline. We understand bid deadlines and work to meet your schedule.
We deliver Excel spreadsheets with itemized quantities organized by trade and floor, plus PDF summary reports. The Excel format allows you to easily adjust unit pricing, apply your own labour rates, and integrate with your estimating software. Custom formats are available if you have specific requirements.
Yes, we can include labour hour estimates based on our field experience. We know realistic production rates for framing, drywall, and insulation work - for example, a two-person crew typically hangs 40-60 sheets of drywall per day on walls, fewer on ceilings. Labour estimates are provided separately from material quantities so you can apply your own crew rates and factor in site-specific conditions.
We need architectural floor plans, elevations, and sections at minimum. Structural drawings are required for framing and steel takeoffs - they specify member sizes, connection details, and fire-rated assembly requirements. Specifications help clarify material types, finish levels, and fire rating requirements. PDF format is preferred for digital measurement; CAD or Revit files also work and allow us to extract quantities more precisely.
Yes, our takeoff services are available throughout Ontario and can be done remotely for projects anywhere. You send us digital drawings and we deliver digital takeoffs - location doesn't matter for estimation work.
A construction takeoff is a detailed measurement and count of all materials needed for a project, extracted from architectural and structural drawings. It includes quantities for framing lumber, steel, insulation, drywall, fasteners, and other materials — organized by area or assembly. A takeoff is the foundation of an accurate construction estimate, translating drawings into material lists and labor requirements that contractors use to price projects.
Contact us today for a free consultation and estimate on your project.
Request Quote Online(416) 901-6020Professional metal stud shop drawings in Toronto. Detailed CFS framing drawings for cold-formed steel and metal stud projects.
Professional steel detailing and shop drawings in Toronto. Structural steel fabrication drawings for beams, columns, and connections.
Professional value engineering services in Toronto. Cost optimization and design alternatives for construction projects without compromising quality.
Contact Konstruction Group today for professional estimation services in Toronto and the GTA.
Get a Free Quote